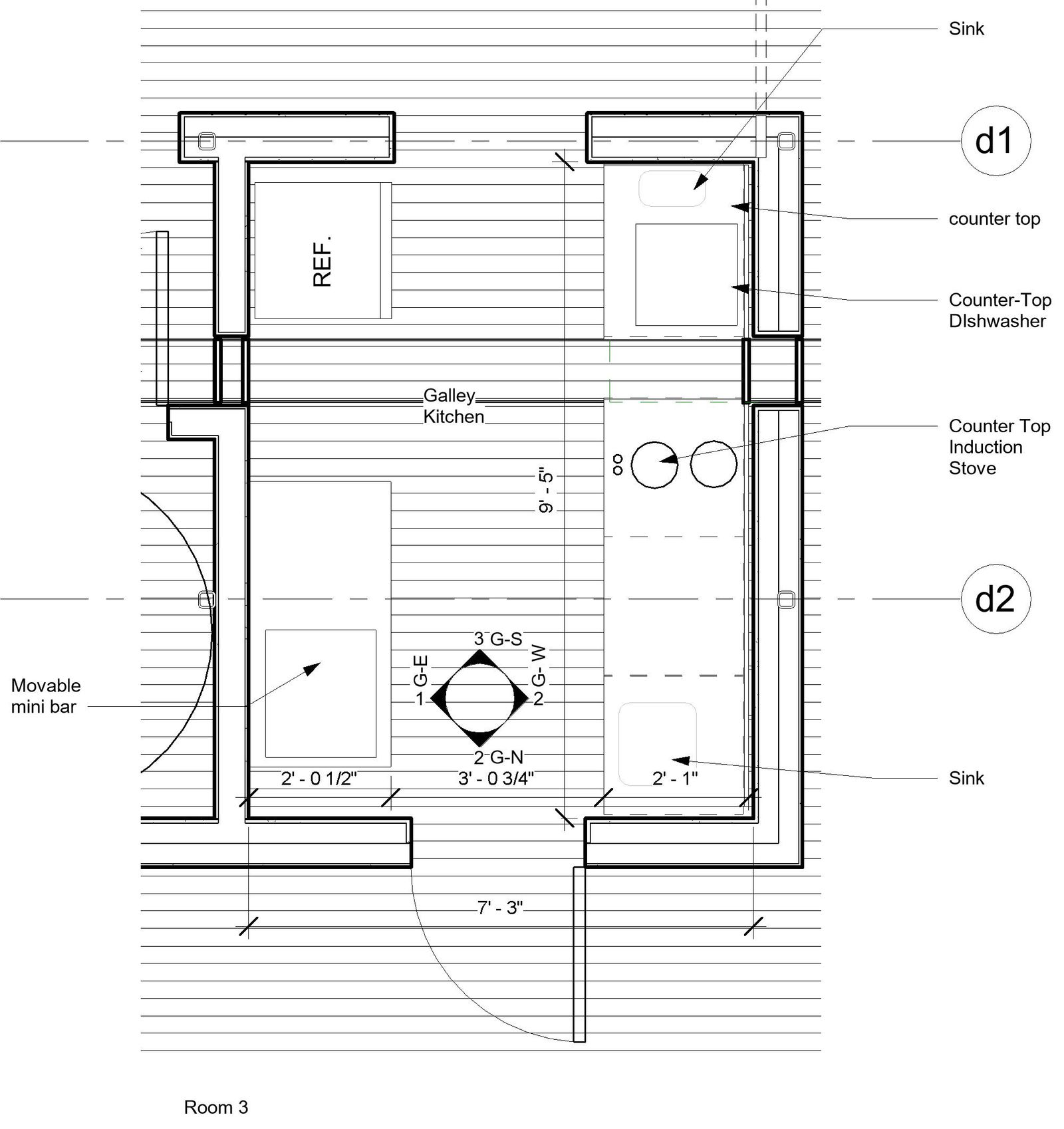
Galley Kitchens are highly functional systems designed for flexibility. Appliances and units can be added or removed as needed, while energy-efficient equipment such as induction stoves, toaster ovens, and air fryers reduce excess heat. The layout can also be divided into multiple zones for versatile use, as shown below.
Spec:
- Toaster Oven by Brevill
- Countertop dishwasher by Farberware
- Sink by Dometic VA8000-Sink
- Small sing by Dometic VA 930
- Kitchen system for event by Ipeco
- Induction oven by NutriChef

