Design Build $3 per SF
Contact Us
ADUs
Log In
Subscribe
Search Angel Landings
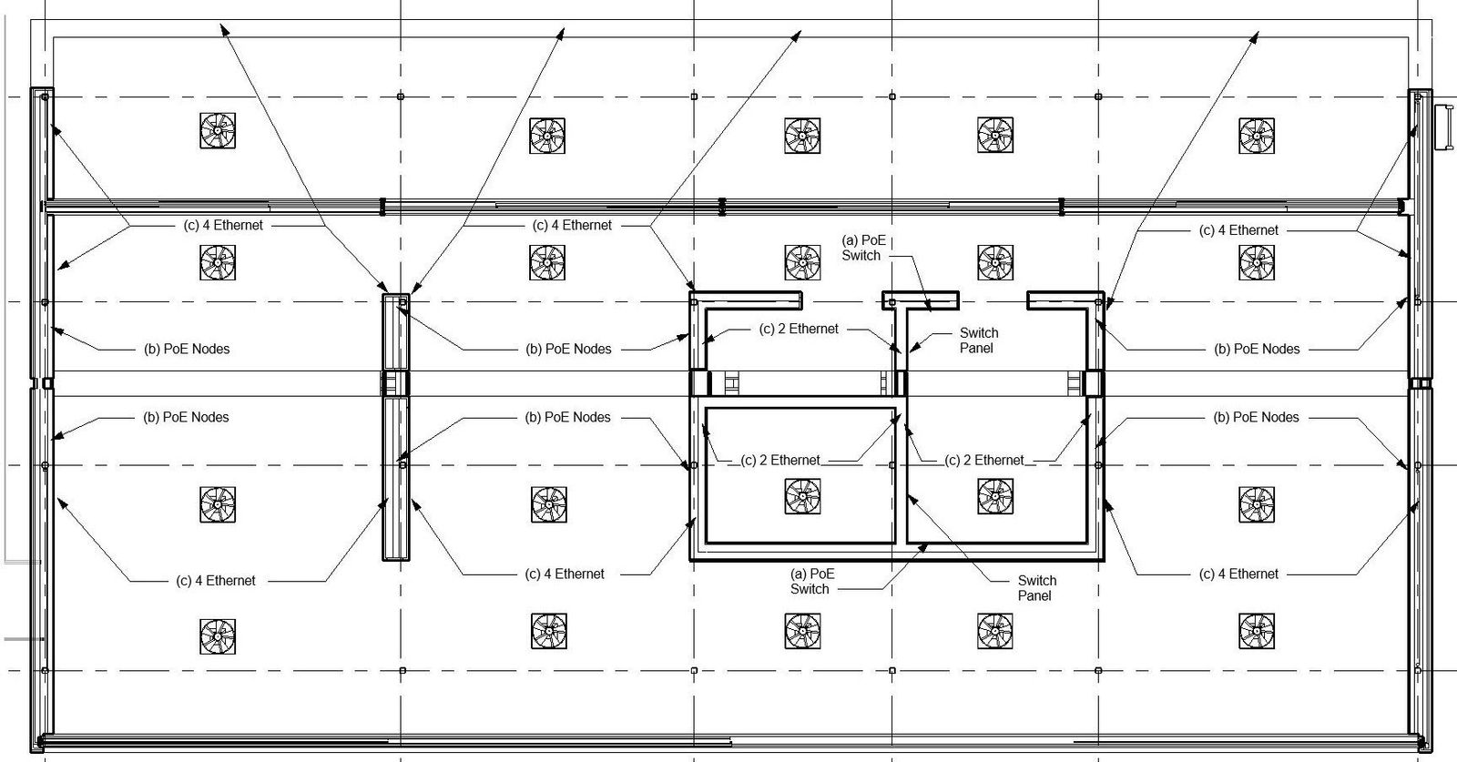
PoE
PoE
Electrical work, PoE lines, Solar, & GFI
19.Apr.2021
jag