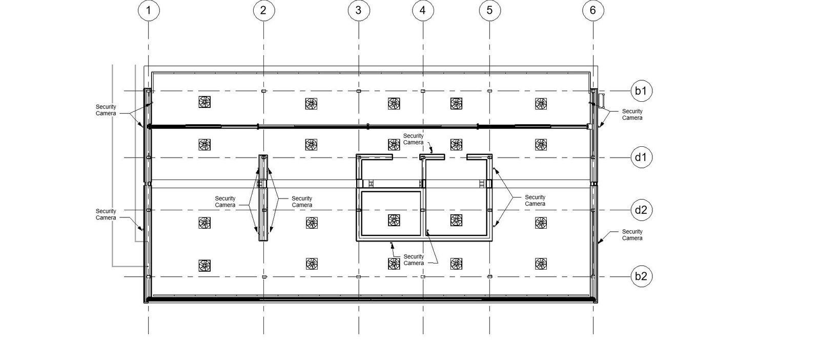
PoE powered camera system can be easily installed and scaled up for multiple uses. PoE ethernet line carries both power and data so no addition power or conduit is required for this system. PoE ethernet cables can be installed by anyone, and licensed electrician is NOT required for POE install.
See spec below:
Anpviz 3MP PoE IP Dome Camera IP Security Camera Outdoor Night Vision 98ft, Motion Alert, Weatherproof IP66
