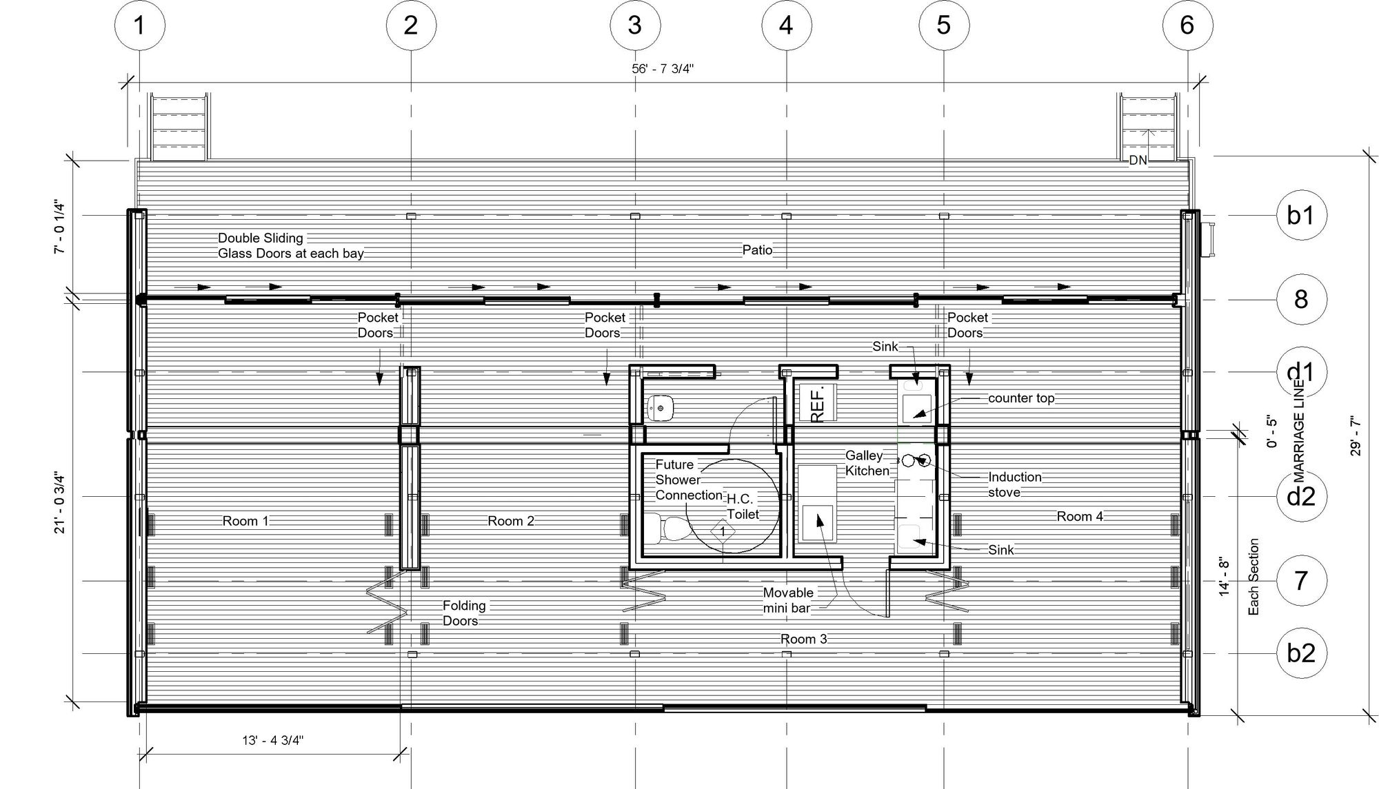
Option 1. Option 1 PlanOption 1 - North ElevationOption 1- South ElevationOption 2.Option 2 - planOption 2-North ElevationOption 2-South ElevationOption 3.Option 2- PlanOption 3 - North ElevationOption 3 - South Elevation 3 options Comments Please enable JavaScript to view the comments powered by Disqus.