Design Build $3 per SF
Contact Us
ADUs
Log In
Subscribe
Search Angel Landings
cs 12000
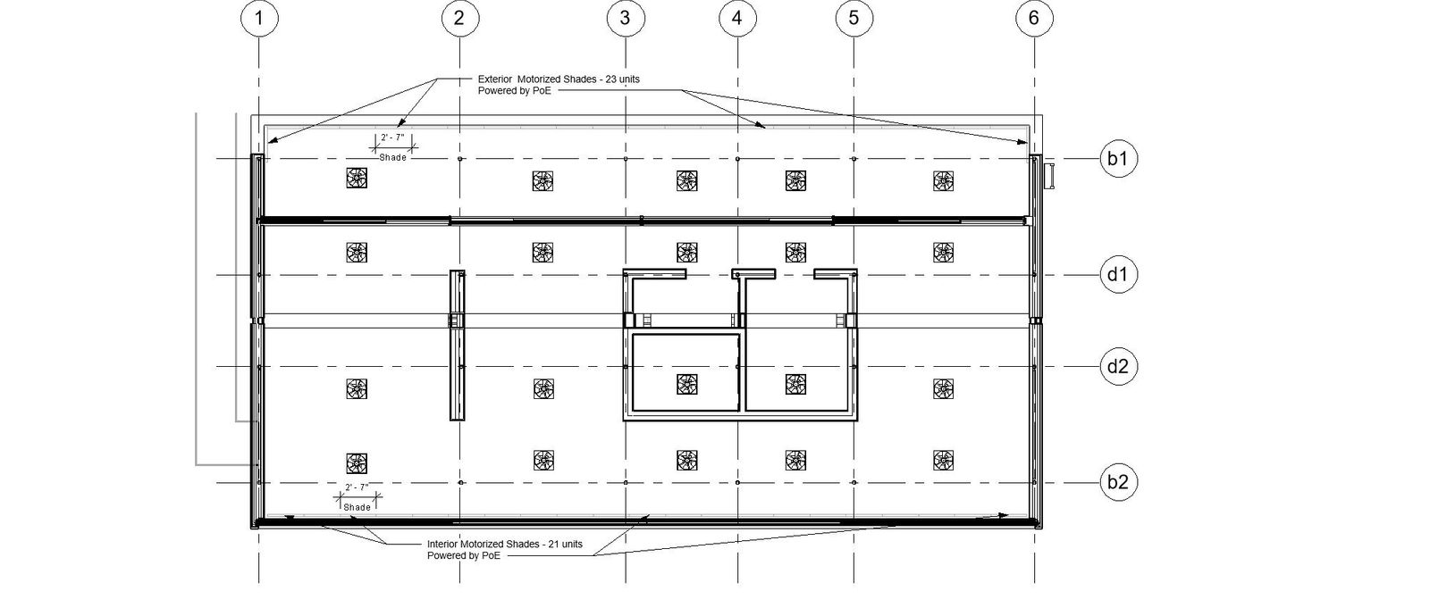
motorized shades
Motorized shades
03.May.2021
jag